




100% gratis og uforpligtende
100% gratis og uforpligtende
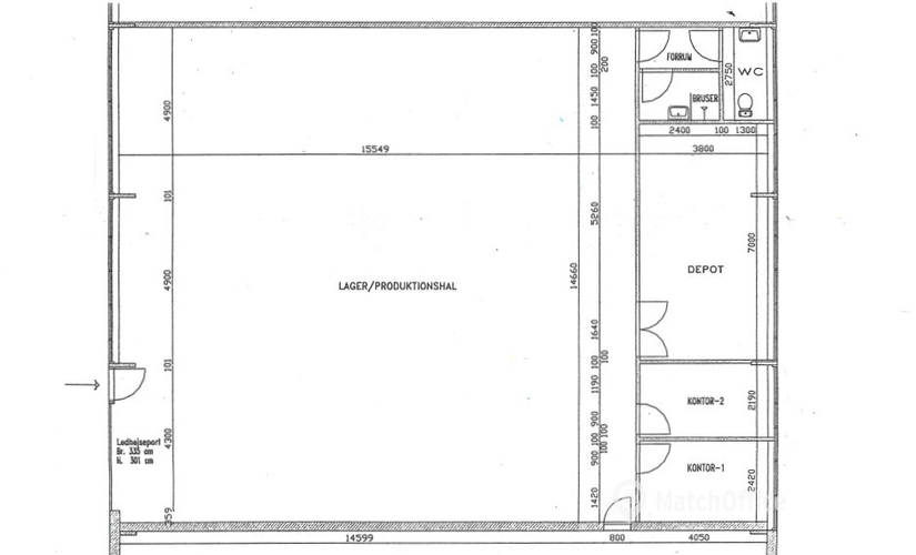
Velegnet til højloftet lager. Indeholder tekøkken, toilet og bad.
Præsentabelt højloftet lager/produktionslejemål på i alt 300 m2.
Lejemålet har lyse lokaler med flere ovenlysvinduer.
Der er ledhejseport som er HxB: 3 x 3,35 meter.
Bagerst i lejemålet er 2 små kontorer, ekstra depotrum, tekøkken, toilet og bad.
Lejemålet har mange anvendelsesmuligheder.
Parkeringsplads medfølger til lejemålet.
Busforbindelse lige uden for døren og kun 800 meter fra Herlev station.
Prisen er angivet inkl. driftsomkostninger.
Derudover kommer der kun forbrug af el, vand og varme samt en lille andel til snerydning.
Der skal betales 6 mdr. depositum ved indgåelse af lejekontrakt og opsigelsesperioden er 6 mdr.
Lejemålet opvarmes med fjernvarme, er isoleret og kan derfor opvarmes.
Dette lager er nemt at komme til og fra, da det nærmeste busstoppested kun ligger 231 m væk. En bilvask tæt på, gør dagligdagen endnu lettere. Du finder den 973 m fra lageret. Dette lager tilbyder bade- og brusefaciliteter til alle brugere af lokalerne. Det er nemt at parkere tæt på lageret, og det er et stort plus ved denne placering.
Basic
Spisefaciliteter
Kontorfunktioner
De årlige omkostninger til a conto varme er for dette produktion/lagerlokale oplyst til 80 DKK pr. m². Et lager i Skovlunde effektiviserer leveringer til din virksomhed, da det er let tilgængeligt. Som potentiel lejer kan du få adgang til relevant information om dette produktion/lagerlokale på Literbuen 12B i Skovlunde, 2740, ved at udfylde denne formular. Udfyld formularen for at få den ønskede information om dette produktion/lagerlokale. Dine spørgsmål vil blive direkte besvaret af udlejer.
Ved at besøge lagerets lokation vil du hurtigt opdage, at park ligger lige i nærheden. Sømose Å løber kun 139 m fra lageret, hvilket fjerner byrden af industrielt omdømme væk fra området. Ved at leje dette lager giver du dig selv muligheden for at nyde skønheden ved Hanevad Sø kun 932 m derfra.

Har du ikke fundet dit ønskede lokale?
Opret en gratis søgeagent og få automatisk besked.
Vi sender dig en mail, hver gang vi bringer annoncer, der matcher dine behov.
Siden med dine favoritter lejemål er fyldt. Vil du tilføje nye, skal du fjerne flere af dine nuværende favoritter.
Siden med dine favoritter lejemål er fyldt. Vil du tilføje nye, skal du fjerne flere af dine nuværende favoritter.
Siden med dine favoritter lejemål er fyldt. Vil du tilføje nye, skal du fjerne flere af dine nuværende favoritter.
Siden med dine favoritter lejemål er fyldt. Vil du tilføje nye, skal du fjerne flere af dine nuværende favoritter.
Siden med dine favoritter lejemål er fyldt. Vil du tilføje nye, skal du fjerne flere af dine nuværende favoritter.
Siden med dine favoritter lejemål er fyldt. Vil du tilføje nye, skal du fjerne flere af dine nuværende favoritter.
Siden med dine favoritter lejemål er fyldt. Vil du tilføje nye, skal du fjerne flere af dine nuværende favoritter.
Siden med dine favoritter lejemål er fyldt. Vil du tilføje nye, skal du fjerne flere af dine nuværende favoritter.
Siden med dine favoritter lejemål er fyldt. Vil du tilføje nye, skal du fjerne flere af dine nuværende favoritter.