




100% gratis og uforpligtende
100% gratis og uforpligtende
AUTOVÆRGSTED eller Lager med store Port Centralt beliggende ved 2 motorvejstilkørsler.
AUTOVÆRGSTED eller Lager med store Port
Centralt beliggende ved 2 motorvejstilkørsler.
Velegnet til Autoværksted, værksted, eller Lager
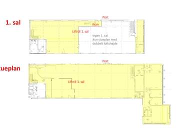
Højloftet hal med port
Kran som dækker hele hallens længde
Mekaniker bad-, toilet og omklædning
Kantine med køkken
2 stk. kontorer
Kundemodtagelse med venteværelse og toiletter
Mulighed for auto-opladning
Stort udeareal til præsentation af biler
I samme bygning er følgende også til leje:
- 680 kvm showroom / forretning på 1. sal
- 157 kvm underetage
- Plads til 3 stk. 40 fods containere /containerpladser.
Vi fremviser med kortvarsel.
.
Kontaktoplysninger

Dette lager er nemt at komme til og fra, da det nærmeste busstoppested kun ligger 223 m væk. Lejere af lageret har også den fordel, at de nærmeste el-ladestandere til elbiler ligger tæt på og kun ligger 515 m væk. Dette lager tilbyder bade- og brusefaciliteter til alle brugere af lokalerne. Dette lager har opbevaringsfaciliteter, som udvider fleksibiliteten i dagligdagen. Det er tilladt at opsætte eget logo ved dette lager.
Velegnet til
Basic
Værelsestyper
Spisefaciliteter
Kontorfunktioner
Sikkerhed
Lejemålet af dette produktion/lagerlokale er udbudt med årlige driftsomkostninger på 158 DKK pr. m². Det er ganske let at komme til Vallensbæk fra alle retninger, hvorfor det er en fremragende lokation for et lager. Som potentiel lejer kan du få adgang til relevant information om dette produktion/lagerlokale på Vallensbækvej 44 i Vallensbæk, 2625, ved at udfylde denne formular. Brug online formularen til at at spørge udlejer direkte omkring dette produktion/lagerlokale.
Dine kunder vil møde et uforglemmeligt syn af sø, som ligger 889 m fra lageret. Lageret ligger tæt på Holbækmotorvejen - at dette er en logistisk drøm kræver ingen dybere forklaring. At have flod i 475 m afstand fra lagerlokalet er en solid infrastrukturel fordel. Ved at besøge lagerets lokation vil du hurtigt opdage, at park ligger lige i nærheden.

Har du ikke fundet dit ønskede lokale?
Opret en gratis søgeagent og få automatisk besked.
Vi sender dig en mail, hver gang vi bringer annoncer, der matcher dine behov.
Siden med dine favoritter lejemål er fyldt. Vil du tilføje nye, skal du fjerne flere af dine nuværende favoritter.
Siden med dine favoritter lejemål er fyldt. Vil du tilføje nye, skal du fjerne flere af dine nuværende favoritter.