




100% gratis og uforpligtende
100% gratis og uforpligtende
AUTOVÆRGSTED eller LAGER med store Port. Centralt beliggende ved 2 motorvejstilkørsler. Stort udeareal til præsentation af biler.
AUTOVÆRGSTED eller Lager med store Port.
Centralt beliggende ved 2 motorvejstilkørsler.
Velegnet til Autoværksted, værksted, eller Lager
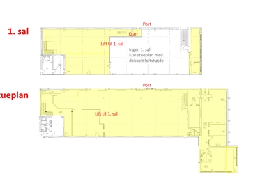
Højloftet hal med port
Kran som dækker hele hallens længde
Mekaniker bad-, toilet og omklædning
Kantine med køkken
2 stk. kontorer
Kundemodtagelse med venteværelse og toiletter
Mulighed for auto-opladning
Stort udeareal til præsentation af biler
I samme bygning er følgende også til leje:
- 680 kvm showroom / forretning på 1. sal
- 157 kvm underetage
- Plads til 3 stk. 40 fods containere /containerpladser.
Vi fremviser med kortvarsel -også aften og weekend! .
Kontaktoplysninger

Dette lager er nemt at komme til og fra, da det nærmeste busstoppested kun ligger 223 m væk. En bilvask tæt på, gør dagligdagen endnu lettere. Du finder den 307 m fra lageret. Dette lager tilbyder bade- og brusefaciliteter til alle brugere af lokalerne. Faciliteter til handicappede er installeret i dette lager. Det er tilladt at opsætte eget logo ved dette lager.
Velegnet til
Basic
Spisefaciliteter
Kontorfunktioner
Sikkerhed
Tilgængelighed
Betal ikke mere end byens gennemsnit: de årlige driftsomkostninger er 158 DKK pr. kvm. Det er let at komme hertil fra alle dele af byen, hvorfor lagerets adresse i Vallensbæk gør logistikken en hel del nemmere. Som potentiel lejer kan du få adgang til relevant information om dette produktion/lagerlokale på Vallensbækvej 44 i Vallensbæk, 2625, ved at udfylde denne formular. Online formularen kan udfyldes og hjælpe dig ved at komme i direkte kontakt med udlejer.
Sø ligger 889 m fra lagerlokalet, hvilket hjælper de lokale med at slappe af i en travl hverdag. Lageret ligger tæt på Holbækmotorvejen - at dette er en logistisk drøm kræver ingen dybere forklaring. At have flod i 475 m afstand fra lagerlokalet er en solid infrastrukturel fordel. Ved at besøge lagerets lokation vil du hurtigt opdage, at park ligger lige i nærheden.

Har du ikke fundet dit ønskede lokale?
Opret en gratis søgeagent og få automatisk besked.
Vi sender dig en mail, hver gang vi bringer annoncer, der matcher dine behov.
Siden med dine favoritter lejemål er fyldt. Vil du tilføje nye, skal du fjerne flere af dine nuværende favoritter.
Siden med dine favoritter lejemål er fyldt. Vil du tilføje nye, skal du fjerne flere af dine nuværende favoritter.
Siden med dine favoritter lejemål er fyldt. Vil du tilføje nye, skal du fjerne flere af dine nuværende favoritter.
Siden med dine favoritter lejemål er fyldt. Vil du tilføje nye, skal du fjerne flere af dine nuværende favoritter.
Siden med dine favoritter lejemål er fyldt. Vil du tilføje nye, skal du fjerne flere af dine nuværende favoritter.
Siden med dine favoritter lejemål er fyldt. Vil du tilføje nye, skal du fjerne flere af dine nuværende favoritter.
Siden med dine favoritter lejemål er fyldt. Vil du tilføje nye, skal du fjerne flere af dine nuværende favoritter.